Добро пожаловать на http://vipplan.ru

Випплан Владикавказ - это тысячи проектов домов в нашем каталоге!

Вы всегда сможете найти для себя проект дома вашей мечты! Даже если этого не случилось, мы готовы в любую минуту предложить проект индивидуального дома.

Забыли пароль?
Вы еще не регистрировались?

Перейдите по ссылке ниже на страницу регистрации.

Регистрация...

Внимание!!!

В проектную документацию могут быть внесены изменения любой сложности, в соответствии в Вашими пожеланиями!

Полезные статьи

Технология строительства быстровозводимых домов

Погода бывает разной и показывает свой характер и он не редко оказывается малоприятным. Прекрасная солнечная погода сменяется то жарой, то резким похолоданием, то проливными дождями. Когда наступает зима, вопрос утепления деревянного дома становится все актуальнее и актуальнее. Если вы планируете построить дом в конце осени, то вам нужно знать,что микроклимат который будет создаваться внутри, повлияет на сопротивляемость организма, к простуде и прочим вирусным заболеваниям. Да и в теплом уютном доме приятно проводить время, когда за окном вьюга и стужа....

Монолитный коттедж с несъемной опалубкой

Перед тем, как вы задумаетесь о строительстве своего коттеджа, необходимо выбрать, сами вы будете руководить строительством, нанимать разных рабочих, или будете обращаться в строительную фирму, и заключать с ними договор. Но даже к этому вопросу нужно подходить правильно, обдумав все плюсы и минусы выбора....

Проекты домов и коттеджей > Каталог проектов домов > Дом с мансардой, подвалом, гаражом на 2 машины, террасой и балконами Vg1161

Дом с мансардой, подвалом, гаражом на 2 машины, террасой и балконами Vg1161

Дом с мансардой, подвалом, гаражом на 2 машины, террасой и балконами
Зарегистрируйтесь

Проект № Vg1161


Техническое описание
Общая площадь: 274.01 м2
Жилая площадь: 102.95 м2
Высота здания: 8.51 м
Размеры дома: 15.98м×14м
Кол-во комнат: 5
Цокольный этаж: есть
Гараж: нет
Мансарда: есть

Kонструкция
Фундамент: Ленточный монолитный ж/б
Перекрытия: Ж/б плиты
Материал стен: Керамоблок

Архитектурный раздел
Конструктивный раздел
АР+КР - 72 000 (Со скидкой 20%)
Проект индивидуального однотажного жилого дома с мансардой с размерами здания 15,98 x 14,00 м. Наружная отделка здания – облицовочный кирпич Фундамент – ленточный монолитный ж/б (под несущими стенами). Наружные стены – керамические блоки, утепление - экструдированный пеноплолистирол , отделка - облицовочный кирпич. Внутренние стены - из керамических блоков. Перегородки – из керамических блоков. Пол подвала - пол по грунту. Межэтажное перекрытие - ж/б плиты. Крыша металлочерепица. Кровля – многоскатая. Окна - металлопластиковые, выполненные по индивидуальному заказу.
Генплан застройки участка / Паспорт проекта 7000 руб / 10000 руб
Инженерный раздел (полный) 137000 руб
Смета на строительство 68500 руб
Теплотехнический расчет материалов стен Бесплатно
Стоимость проекта со незначительнми изменениями 83150 руб
Стоимость проекта со средними изменениями* 103700 руб
Стоимость проекта со значительными изменениями** 109200 руб

План цокольного этажа


Холл — 12,88 кв м
Помещение 1 — 17,17 кв м
Помещение 2 — 25,08 кв м

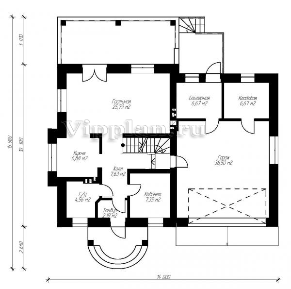
План первого этажа


Бойлерная — 6,67 кв м
Кладовая — 6,67 кв м
Гараж — 36,50 кв м
Кабинет — 7,35 кв м
Тамбур — 2,19 кв м
С/у — 4,56 кв м
Холл — 7,63 кв м
Кухня — 6,88 кв м
Гостиная — 25,79 кв м

План мансардного этажа


Балкон — 23,80 кв м
Спальня — 18,21 кв м
С/у — 6,86 кв м
Гардероб — 8,06 кв м
Гардероб — 5,80 кв м
Гардероб — 5,80 кв м
Спальня — 38,26 кв м
Холл — 4,72 кв м
Гардероб — 4,99 кв м
Спальня — 13,34 кв м
Балкон — 4,88 кв м
Дом с мансардой, подвалом, гаражом на 2 машины, террасой и балконами Дом с мансардой, подвалом, гаражом на 2 машины, террасой и балконами Дом с мансардой, подвалом, гаражом на 2 машины, террасой и балконами Дом с мансардой, подвалом, гаражом на 2 машины, террасой и балконами

Модификации проектов

Внесение изменений и привязка к участку строительства

В любой из проектов от компании VIPplan - Владикавказ по вашему желанию могут быть внесены изменения в материалы стен, материалы наружной отделки дома, а также будет произведена адаптация проекта под конкретный регион строительства (с учетом грунтов региона, геологических особенностей вашего участка и местных климатических условий) - БЕСПЛАТНО !!! (кроме проектов со скидкой и проектов наших партнеров).

Любой из проектов, размещенных на сайте vladikavkaz.vipplan.ru мы можем выполнить из требуемых вам строительных материалов: ячеистый бетон (газобетон, пеноблок), керамоблок, кирпич, шлакоблок, бетонный блок, дерево (брус, клееный брус), каркасная технология (деревянный каркас, металлокаркас (ЛСТК)).

Фасад дома и его наружную отделку так же возможно выполнить с применением различных облицовочных материалов: структурной штукатурки, (с утеплителем и без), сайдингом (пластиковый или металлосайдинг), фиброплитами, кирпича.

 
6 Избранные
проекты

Доставка проектов по России: Москва (Московская область), Санкт-Петербург (Ленинградская область), Краснодар, Ростов-на-Дону, Ставрополь, Сочи, Волгоград, Новосибирск, Белгород, Брянск, Воронеж, Саратов, Хабаровск, Астрахань, Нальчик, Владикавказ, Екатеринбург, Тюмень, Самара, Нижний Новгород, Казань, Пермь, Уфа, Челябинск, Красноярск, Ханты-Мансийск, Иркутск, Курган, Оренбург, Омск, Томск, Барнаул, Новокузнецк, Кемерово, Абакан, Чита, Якутск, Южно-Сахалинск, Петропавловск-Камчатский и страны ближнего зарубежья: Белоруссия, Украина, Казахстан