Добро пожаловать на http://vipplan.ru

Випплан Владикавказ - это тысячи проектов домов в нашем каталоге!

Вы всегда сможете найти для себя проект дома вашей мечты! Даже если этого не случилось, мы готовы в любую минуту предложить проект индивидуального дома.

Забыли пароль?
Вы еще не регистрировались?

Перейдите по ссылке ниже на страницу регистрации.

Регистрация...

Внимание!!!

В проектную документацию могут быть внесены изменения любой сложности, в соответствии в Вашими пожеланиями!

Полезные статьи

Перекрытия в доме

Перекрытия – одно из важнейших составляющих строящегося дома. Это горизонтальная внутренняя защитная конструкция, разделяющая по уровню смежные помещения дома. По назначению выделяют подвальные, межэтажные и чердачные перекрытия. При проектировании домов и зданий различного назначения, требования к межэтажным перекрытиям определяются их местоположением и функциями разделяемых помещений: надподвальные, межэтажные, чердачные и т.д....

Мероприятия по получению разрешения на строительство в Владикавказе

Хотите построить дом в Владикавказе? Не знаете с чего начать? Для начала, нужно заказать проект, а после получить разрешение на строительство. ...

Проекты домов и коттеджей > Каталог проектов домов > Проект дома из белого кирпича Vg2341

Проект дома из белого кирпича Vg2341

Проект дома из белого кирпича
Зарегистрируйтесь

Проект № Vg2341


Техническое описание
Общая площадь: 217.12 м2
Жилая площадь: 107.48 м2
Высота здания: 9.55 м
Размеры дома: 11.08м×14.08м
Кол-во комнат: 6
Цокольный этаж: нет
Гараж: нет
Мансарда: есть

Kонструкция
Фундамент: Свайно-ростверковый
Перекрытия: деревянные балки
Материал стен: Газобетон

Архитектурный раздел
Конструктивный раздел

Смета на строительство
АР+КР - 64 000 (Со скидкой 20%)
Модель проекта индивидуального одноэтажного жилого дома смансардой с размерами здания 11,08 x 14,08 м. Наружная отделка здания – облицовочный кирпич. Фундамент – свайно-ростверковый (буронабивной). Наружные стены – газобетонный блок. Внутренние стены – газобетонный блок. Перегородки 1 этажа – газобетонный блок, мансарды - каркасные с ГКЛ. Пол 1 этажа - пол по грунту. Межэтажное перекрытие - деревянные балки. Крыша двускатная. Кровля – металлочерепица. Окна — металлопластиковые.
Генплан застройки участка / Паспорт проекта 7000 руб / 10000 руб
Инженерный раздел (полный) 108500 руб
Смета на строительство 40688 руб (54250 руб)
Теплотехнический расчет материалов стен Бесплатно
Стоимость проекта со незначительнми изменениями 74550 руб
Стоимость проекта со средними изменениями* 90900 руб
Стоимость проекта со значительными изменениями** 95200 руб

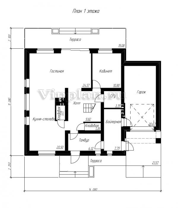
План первого этажа


Тамбур — 6,12 м2
Холл — 9,82 м2
Кладовая — 1,36 м2
Кладовая — 1,4 м2
Кухня — 20,5 м2
Гостиная — 24,57 м2
Кабинет — 10,8 м2
С/у — 3,19 м2
Бойлерная — 7,79 м2
Гараж — 20,67 м2

План мансардного этажа


Холл — 16,18 м2
Спальня — 19,18 м2
Спальня — 19,18 м2
Спальня — 17,28 м2
Спальня — 15,28 м2
Постирочная — 7,76 м2
С/у — 9,56 м2
Гардероб — 3,92 м2
Балкон — 1,37 м2
Проект дома из белого кирпича Проект дома из белого кирпича Проект дома из белого кирпича Проект дома из белого кирпича
Внесение изменений и привязка к участку строительства

В любой из проектов от компании VIPplan - Владикавказ по вашему желанию могут быть внесены изменения в материалы стен, материалы наружной отделки дома, а также будет произведена адаптация проекта под конкретный регион строительства (с учетом грунтов региона, геологических особенностей вашего участка и местных климатических условий) - БЕСПЛАТНО !!! (кроме проектов со скидкой и проектов наших партнеров).

Любой из проектов, размещенных на сайте vladikavkaz.vipplan.ru мы можем выполнить из требуемых вам строительных материалов: ячеистый бетон (газобетон, пеноблок), керамоблок, кирпич, шлакоблок, бетонный блок, дерево (брус, клееный брус), каркасная технология (деревянный каркас, металлокаркас (ЛСТК)).

Фасад дома и его наружную отделку так же возможно выполнить с применением различных облицовочных материалов: структурной штукатурки, (с утеплителем и без), сайдингом (пластиковый или металлосайдинг), фиброплитами, кирпича.

 
6 Избранные
проекты

Доставка проектов по России: Москва (Московская область), Санкт-Петербург (Ленинградская область), Краснодар, Ростов-на-Дону, Ставрополь, Сочи, Волгоград, Новосибирск, Белгород, Брянск, Воронеж, Саратов, Хабаровск, Астрахань, Нальчик, Владикавказ, Екатеринбург, Тюмень, Самара, Нижний Новгород, Казань, Пермь, Уфа, Челябинск, Красноярск, Ханты-Мансийск, Иркутск, Курган, Оренбург, Омск, Томск, Барнаул, Новокузнецк, Кемерово, Абакан, Чита, Якутск, Южно-Сахалинск, Петропавловск-Камчатский и страны ближнего зарубежья: Белоруссия, Украина, Казахстан